
Métis-sur-Mer Cabin
Located along a ridge overlooking the mouth of the St. Lawrence River, in Quebec Canada. The Metis Cabin takes design cues from both its natural surroundings and the vernacular architecture of the area. Simultaneously creating an unassuming presence from the exterior, and enhancing the occupants connection with their natural surroundings from the interior.
Sited on an existing clearing in the woods. The structure acts as both a screen and a lens. Obscuring the views of the bay and the lighthouse beyond as one approaches. Then revealing the beauty beyond through a cut in the otherwise opaque façade.


West Elevation

South Elevation

East Elevation

North Elevation



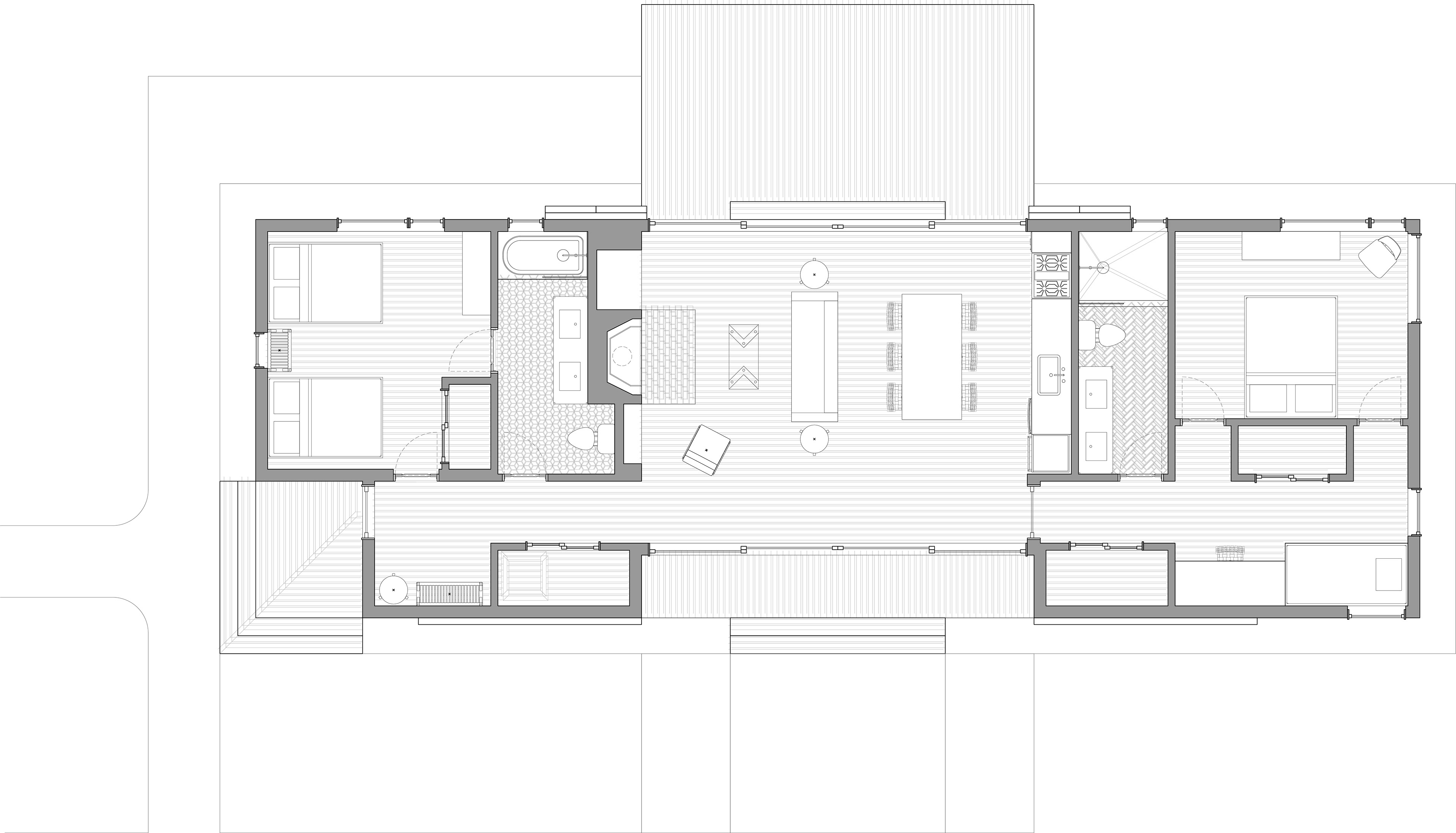
The design of 1400 square foot, two bedroom, two bath house is centered around this open area that acts as the communal space of the house. Containing all the essentials for living in rural Quebec; with room for gathering, cooking, and everything in between. All while letting one feel connected to their surroundings. The communal space is book-ended by the guest suite and master suite. Allowing occupants the ability to retreat to their own secluded areas to recharge.














Métis-sur-Mer Cabin
Location | Métis-sur-Mer, Québec, Canada
Completed | 2018
Design Team | Matthew White and Todd Curtin [White Curtin]
Photographs | Matthew White